Descrizione Immobile
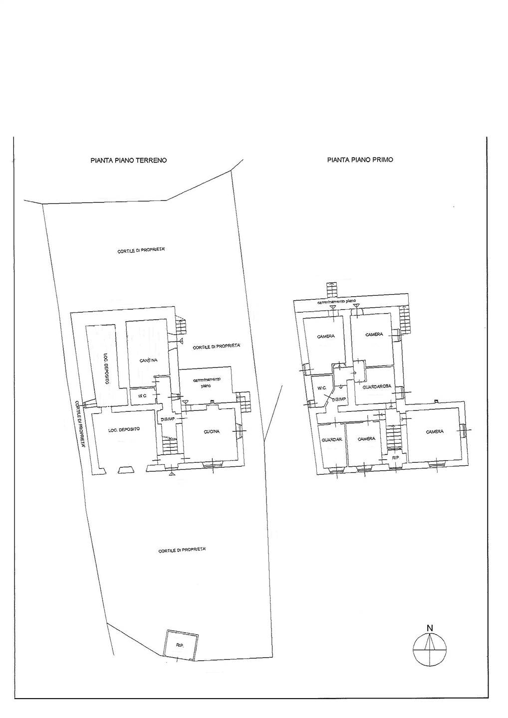
Sulle dolci colline della Langa astigiana con splendida vista panoramica, in un contesto autentico e ricco di quiete, si trova questa affascinante casa rustica dal grande potenziale, ideale per chi sogna di recuperare una dimora storica mantenendone il carattere originario. Al piano terra si accede direttamente alla cucina, cuore genuino della casa; troviamo poi due ampie cantine con suggestive volte in pietra, perfette per diventare ambienti conviviali, locali degustazione o spazi di conservazione dal fascino unico. Un portico (realizzabile) offre la possibilità di ricavare un'ampia zona giorno affacciata sul verde circostante. Il piano primo ospita ben sei camere e un bagno, spazi che permettono diverse interpretazioni: camere per ospiti, studio, atelier o una grande zona notte familiare. La casa è priva di impianto di riscaldamento, ma dispone già di allacciamento alla luce, acquedotto e fossa biologica. Completa la proprietà un piccolo giardino. Un'opportunità rara per chi desidera creare la propria abitazione o casa vacanze in uno degli angoli più autentici del Piemonte, immerso nella tranquillità e nei profumi delle colline langarole.Ref ID: 129724
Prezzo: € 130.000
Superficie Immobile: 183 m2
Vani: 9
Camere: 6
Bagni: 1
Rif: 3272
Garage: 0
Garage Mq: 0
Condizioni: Abitabile
Riscaldamento: Inesistente
Classe Energetica: 8
cantina






































































































