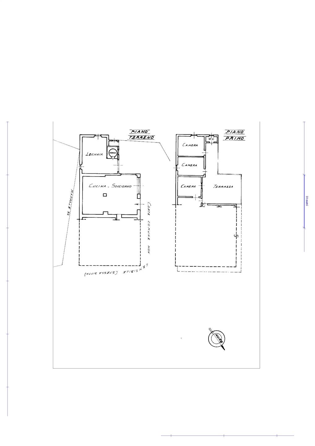
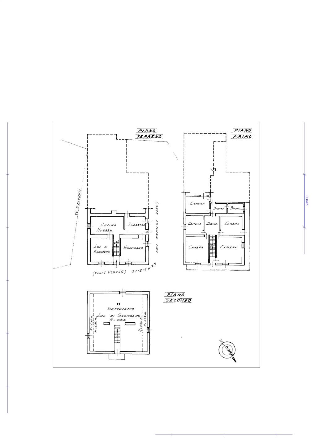
Descrizione Immobile
Sulle stupende colline del Monferrato, in posizione panoramica e soleggiata e con vista sulla catena alpina, antica cascina in pietra ad oggi intonacata. Al piano terra troviamo un'ampia cucina con dispensa, due sale da pranzo con camino , salotto con camino, ampio salone, bagno con acceso dall'esterno, e cantina con forno a legna. Al primo piano troviamo 7 camere da letto con voltini in mattoni + studio e due bagni; grande terrazzo con vista panoramica. Locale sottotetto. La proprietà è servita di: acquedotto comunale, pozzo, luce, fossa biologica, riscaldamento a gasolio. Ideale come casa vacanze, in quanto situata in un eccellente contesto naturalistico, oppure come attività turistico-ricettiva. Terreno di 10.541 m².Ref ID: 127944
Prezzo: € 230.000
Superficie Immobile: 280 m2
Vani: 10
Camere: 5
Bagni: 1
Rif: 3254
Garage: 0
Garage Mq: 0
Condizioni: Buone
Riscaldamento: Autonomo
Classe Energetica: 8
terrazza



































